Espace propriétaire
fr
Ils nous ont fait confiance 
La Grande-Motte (34280)

3 pièces - 69 m²

335 000 €
Ref : 556
A propos de ce bien

Laissez-vous séduire par ce magnifique appartement T3 de 69m², niché au dernier étage d’une résidence sécurisée, entourée de superbes espaces verts. Ici, la tranquillité règne et le charme opère dès l’entrée.

Baigné de lumière grâce à sa configuration traversante, cet appartement a été entièrement rénové avec des matériaux de qualité et une décoration raffinée. Vous profiterez d’une terrasse ensoleillée, véritable invitation à la détente, où savourer vos petits-déjeuners ou vos soirées d’été.

Le palier, partagé avec un seul voisin, garantit une intimité rare. À quelques pas seulement du port et des commerces, vous vivrez au rythme de la Méditerranée, entre douceur de vivre et praticité au quotidien.

Un lieu unique, alliant élégance, confort et art de vivre, à découvrir sans attendre pour concrétiser vos plus beaux projets.

Possibilité d'acquérir un garage en sus.

Contactez Clément



Descriptif de ce bien
Général
Code postal 34280
Surface loi Carrez (m²) 69,14 m²
Nombre de chambre(s) 2
Nombre de pièces 3
Etage 2
Ascenseur NON
Vue 2
Détails
Nb de salle d'eau 1
Cuisine Américaine
Type de cuisine SEMI-EQUIPEE
Mode de chauffage Electrique
Type de chauffage Radiateur
Format de chauffage Individuel
Interphone OUI
Balcon OUI
Terrasse OUI
Murs mitoyens 2
Cave NON
Exposition Nord-Sud
Année de construction 1981
Composition
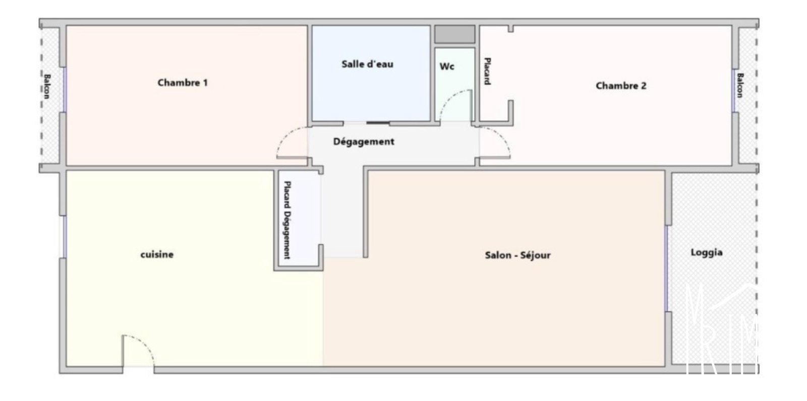
Rez de chaussée
cuisine 14.67 m²

salon/sejour 21.05 m²

Dégagement 4.05 m²

chambre 11.51 m²

chambre 11.18 m²

salle d'eau 3.68 m²

WC 1.18 m²

terrasse 5.80 m²

Financier
Prix de vente 335 000 €
Les honoraires d'agence seront intégralement à la charge du vendeur  
Charges 130 €
Taxe foncière annuelle 1 470 €
Energie
DPE GES
Copropriété
Copropriété OUI
Contacter pour ce bien
L'agence
Téléphone 06 34 09 77 34
Adresse
699 rue de Fontcouvert 34070 Montpellier

* Champ obligatoire

Les informations recueillies sur ce formulaire sont enregistrées dans un fichier informatisé par La Boite Immo agissant comme Sous-traitant du traitement pour la gestion de la clientèle/prospects de l'Agence / du Réseau qui reste Responsable du Traitement de vos Données personnelles. La base légale du traitement repose sur l'intérêt légitime de l'Agence / du Réseau. Elles sont conservées jusqu'à demande de suppression et sont destinées à l'Agence / au Réseau. Conformément à la loi « informatique et libertés », vous disposez des droits d’accès, de rectification, d’effacement, d’opposition, de limitation et de portabilité de vos données. Vous pouvez retirer votre consentement à tout moment en contactant directement l’Agence / Le Réseau. Consultez le site https://cnil.fr/fr pour plus d’informations sur vos droits. Si vous estimez, après avoir contacté l'Agence / le Réseau, que vos droits « Informatique et Libertés » ne sont pas respectés, vous pouvez adresser une réclamation à la CNIL. Nous vous informons de l’existence de la liste d'opposition au démarchage téléphonique « Bloctel », sur laquelle vous pouvez vous inscrire ici : https://www.bloctel.gouv.fr Dans le cadre de la protection des Données personnelles, nous vous invitons à ne pas inscrire de Données sensibles dans le champ de saisie libre.
Ce site est protégé par reCAPTCHA, les Politiques de Confidentialité et les Conditions d'Utilisation de Google s'appliquent.

Découvrir nos outils